9 vani 160mq
Dati annuncio : Venta Multivani, Maser
Rif. BL17 - NUOVA CASA INDIPENDENTE A MASER
Vendesi a Maser frazione, casa singola, al grezzo avanzato (ora è in fase di costruzione), in zona tranquilla ma vicina ai principali servizi. di 160 mq circa.
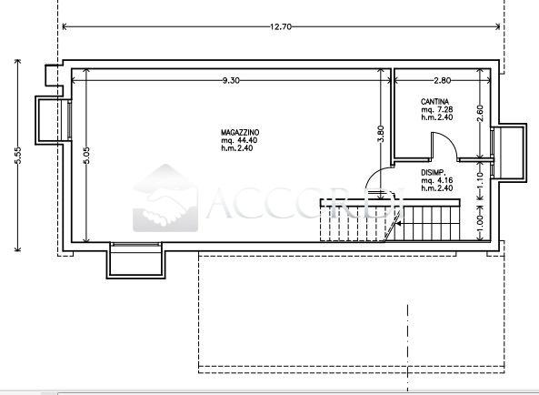
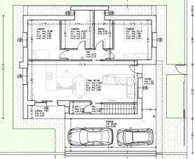
Si sviluppa su due piani, al piano terra: 2 bagni, 3 camere, cucina e soggiorno. Al piano interrato: cantina, taverna e lavanderia.
Grande autorimessa coperta e posto auto esterno.
Fotovoltaico, depuratore e predisposizione per aria forzata.
Giardino privato.
L´immobile è in fase di costruzione.
Si intende precisare che gli indirizzi presenti negli annunci non sono identificativi dell´ubicazione precisa dell´immobile, danno un riferimento solo generico della zona al cliente che ricerca, al fine di tutelare la privacy e riservatezza del venditore.
Per visionare l´immobile o per ricevere ulteriori informazioni contattateci: 0423 1904721.
Le nostre sedi : Montebelluna (TV) - Maser (TV) - Conegliano (TV) - Jesolo (VE). Classe Energetica: non dichiarata
- PropuestaOfrezco
- ContratoVenta
- Precio190.000,00 €
- Habitaciones9
- Cantidad de pisos2
- Plan13
- Jardín de sqm150
- Metros cuadrados totales160
- Habitaciones3
- Baño2
- Espacios de estacionamiento2
- Clase de energíaNd
- EstadoNuovo
- AscensorNo
- Tipo de construcciónResidenziale
- CocinaAbitabile
- TerrazaNo
- JardínPrivato
- LagarSi
- CalefacciónAutonomo
- MueblesNon arredato
- CajaBox doppio
- DisponibilidadLibero al rogito
- ProvinciaTreviso
- ComúnMaser
- Fecha15-12-2025 05:40:14
- CódigoEa-8d8079











